Holy Trinity Richmond Masterplan Work Begins
We have begun work on an exciting project to secure the long-term future of the church and hall at Holy Trinity Richmond.
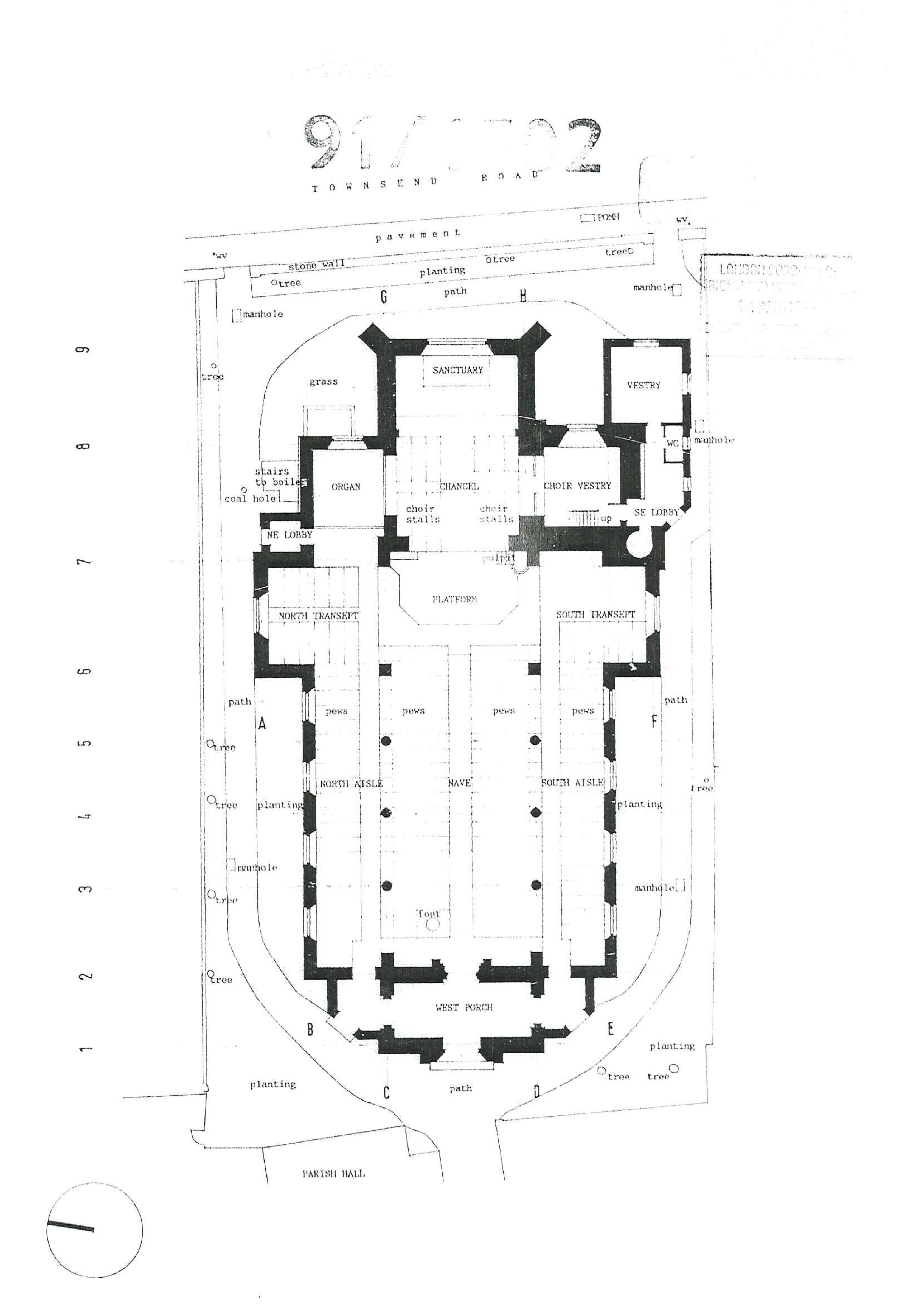
Our remit includes fabric upgrades and servicing overhaul to achieve net zero, developing a masterplan for the entire site, and to eventually construct a new mixed-use development to the west of the church, replacing the aging hall. Tied into these works are a programme of conservation and repair throughout the main church.
The current stage of work encompasses a feasibility study to compile a programme of proposed works and an associated estimated itemised cost. We are working with Greengauge as M&E consultants and Peter Gittins & Associates as quantity surveyors. Specialist roofing and stonework consultants have been engaged to advise on elements of fabric repair and upgrade.


